One-Stop Solution for Lab Equipment, Design, and Construction
Building and operating a research laboratory requires a wide range of considerations, from equipment installation to complex utility and safety management. Simply installing workbenches and lab equipment is not sufficient; a structured approach that encompasses utilities and safety management is essential. Kemist INC. offers comprehensive services, from lab design and equipment selection to installation, operation, and maintenance, ensuring that your R&D Center achieves optimal results.
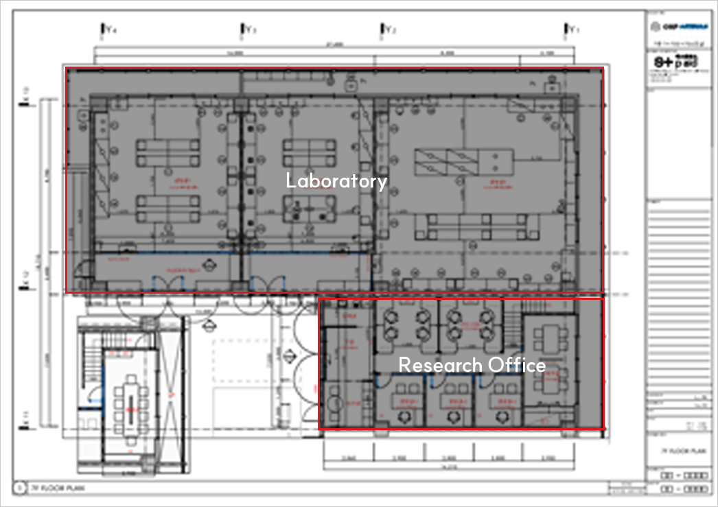
  • Lab Design and Construction

    • · Custom Lab Design: Optimized layout for workbenches, equipment placement, and workflow to create an efficient research environment.
    • · Utility Installation: Design and installation of essential systems for electricity, gas, ventilation, and water supply and drainage.
    • · Safety-Compliant Design: Safe and compliant construction that meets environmental and safety regulations.
  • Research Facilities

    • ·Workbenches, fume hoods, and interior design
    • ·Custom laboratory furniture tailored to client needs
    • ·Eco-friendly and comfortable research environment
    • ·Efficient equipment placement for optimized research space
  • Laboratory Equipment and Supplies

    • ·Analysis and basic laboratory equipment, consumables
    • ·Equipment recommendations tailored to lab needs
    • ·Custom equipment manufacturing and installation
's Expertise
In building research labs, equipment and utility service limitations often arise from traditional suppliers of experimental setups and equipment.
Kemist INC. provides a comprehensive, one-stop solution covering design, consulting,
and construction to ensure researchers work in a safe and comfortable environment.
From initial construction to daily operations, Kemist is with you every step of the way.
  • Cost-Effective and Flexible Laboratories
    Achieve adaptable research spaces with efficient designs that allow for changes in lab settings as needed.
  • Convenient Single Point of Contact
    Manage every step (design, equipment, supplies, construction) seamlessly through Kemist.
  • Flexible Construction Timeline
    Complete both laboratory and office space construction in one streamlined project.
Shortcut your strengths
  • Lab & Research Office Design Examples
    • ∙ A sudden, exhaust air conditioning
    • ∙ Air line
    • ∙ An electrical wiring diagram
  • Lab Equipment and Instruments
    • ∙ Workbenches & Reagent Shelves
    • ∙ Wall-Mounted Workbenches
    • ∙ General-Type Tables
    • ∙ General-Type Tables
    • ∙ Fume Hood
    • ∙ F.Hood System
    • ∙ Walk in Hood
    • ∙ Walk in hodd Bi-Directional Walk-In Hood
    • ∙ Sink Hood & Emergency Shower
    • ∙ Scrubber
    • ∙ Dry Wet Scruber
    • ∙ Convection Oven / Cart for Inner Tube
    • ∙ UV-Visible-NIR & Raman
      Microspectrophotometer
    • ∙ DISK MILL
    • ∙ SAP (Semi Auto Press)
    • ∙ APS (Auto Press System)
    • ∙ AFM
    • ∙ Raman Spectrometer
    • ∙ LC MS
    • ∙ UHPLC
    • ∙ FTIR Spectrometer
    • ∙ ICP OES
    • ∙ Balance
    • ∙ HS(Head Space)-GC/MS