서비스
맞춤형 솔루션 서비스를 소개합니다.
실험장비부터 시공·설계, 장비 제안까지 원스톱 솔루션
연구소 구축 및 운영에는 다양한 요소와 복잡한 고려사항이 필요합니다.
단순히 실험대나 장비설치만으로 충분하지 않으며, 각종 유틸리티와 안전관리까지 포괄하는 체계적인 접근이 필요합니다.
(주)케미스트는 연구소 설계부터 장비선정, 설치, 운영, 유지보수에 이르는 종합적인 서비스를 제공하여 R&D Center가 최적의 성과를 낼 수 있도록 도와드립니다.
  • 연구소 설계 및 구축

    • ·맞춤형 연구소 설계 : 실험대, 장비배치, 작업동선을 최적화하여 효율적인 연구 환경 조성
    • ·유틸리티 설치 : 연구소 운영에 필수적인 전기, 가스, 공조, 급배수 시스템 설계 및 설치
    • ·환경안전 법령에 맞춘 안전한 설계
  • 연구실 시설

    • ·실험대,후드, 인테리어
    • ·고객 맞춤형 실험실 가구
    • ·친환경적 쾌적한 연구환경 조성
    • ·효율적인 연구공간을 위한 장비 배치
  • 연구실장비·소모품

    • ·분석/기초 장비, 소모품
    • ·연구소의 실험에 적합한 장비 제안
    • ·맞춤형 장비 제작 및 설치
만의 노하우
연구소 구축 시, 실험 설비와 장비 공급업체들이 운영과 유틸리티 서비스에 한계를 보이는 경우가 많습니다.
(주)케미스트는 연구원들이 안전하고 편안한 환경에서 근무할 수 있도록 설계, 컨설팅, 시공을 원스톱으로 제공합니다.
연구소 구축부터 운영까지 모든 단계를 함께하는 (주)케미스트와 함께하세요.
  • 경비의 절감 및 유연한 실험실
    효율적 설계로 실험환경에 따라 변경가능한 연구공간 확보
  • 단일소통창구로 진행의 편리
    ㈜케미스트를 통해 모든 진행과정(설계, 장비, 소모품구비, 구축) 확인 가능
  • 유연한 공사기간
    실험실에서 사무실까지 한번에 시공가능
강점 바로가기
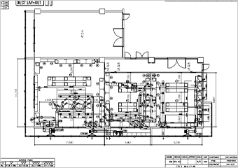
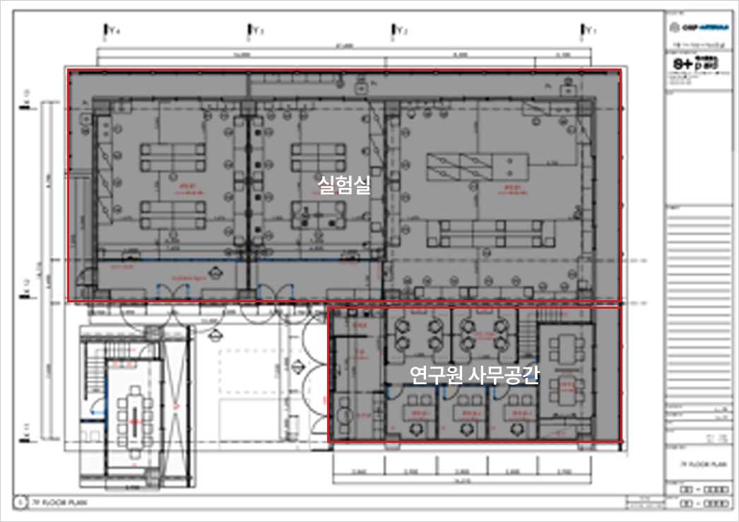
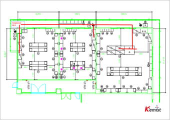
  • 연구실·연구원 사무공간 설계 사례
    • ∙ 급, 배기공조
    • ∙ Air line
    • ∙ 전기 배선도
  • 연구실 기자재 및 장비
    • ∙ 실험대 & 시약대
    • ∙ 벽면 실험대
    • ∙ 일반형 TYPE 테이블 설치
    • ∙ 일반형 TYPE 테이블 설치
    • ∙ Fume Hood
    • ∙ F.Hood System
    • ∙ Walk in Hood
    • ∙ 양방향 Walk in Hood
    • ∙ Sink Hood & 비상샤워기
    • ∙ 스크러버
    • ∙ Dry Wet Scruber
    • ∙ Convection Oven / Cart for Inner Tube
    • ∙ UV-Visible-NIR & Raman
      Microspectrophotometer
    • ∙ DISK MILL
    • ∙ SAP (Semi Auto Press)
    • ∙ APS (Auto Press System)
    • ∙ AFM
    • ∙ Raman Spectrometer
    • ∙ LC MS
    • ∙ UHPLC
    • ∙ FTIR Spectrometer
    • ∙ ICP OES
    • ∙ Balance
    • ∙ HS(Head Space)-GC/MS